What to Expect During a Home Renovation: A Step-by-Step Guide
Understanding the Home Renovation Process From Start to Finish
Taking on a home renovation project can feel exciting—but also a little overwhelming if you’re not sure what to expect. Working with an experienced design-build contractor helps simplify the process and keeps everything organized from start to finish. At Blue Ribbon Residential Construction, we guide homeowners through a clear design-build process that ensures every home remodeling project runs smoothly.

Step-by-Step Home Renovation Process
Here’s what you can expect during a typical home renovation process.
1. Initial Consultation: Defining Your Renovation Goals
Every home remodeling project begins with a consultation. During this meeting, we discuss your goals, lifestyle needs, design preferences, and renovation budget. This step allows our team to understand your vision for your home renovation and begin planning the best way to bring it to life. Here are some inspiration photos our clients sent us for a kitchen remodel and outdoor pool/patio addition:
2. Design & Planning: Creating a Functional and Beautiful Layout
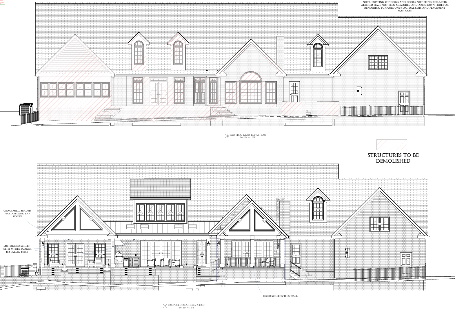
Once we understand your goals, the design phase of the renovation begins. Our team develops floor plans, layouts, and design concepts tailored to your space. Whether you’re planning a kitchen remodel, bathroom renovation, or a full home renovation, thoughtful planning ensures the design is both functional and beautiful. Below are floorplans and elevations our design team drew together:
3. Selections & Budget Review: Choosing Materials and Finishes
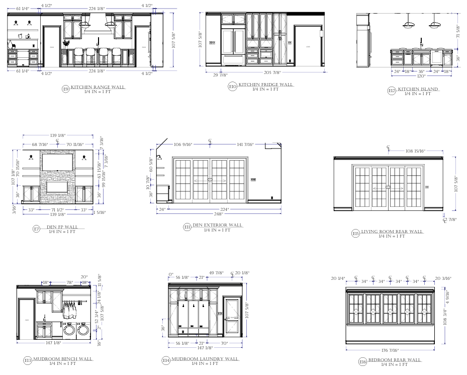
Next comes selecting the materials and finishes that will define your space. This may include cabinetry, tile, countertops, flooring, lighting, and plumbing fixtures. During this phase, we also refine the renovation budget to ensure selections align with your expectations and overall project goals. Here are some of the selections the clients made for their kitchen, mudroom, and other lighting features:
Many of these selections play a key role in the final look and feel of a space, as we highlight in our blog on plumbing and electrical selections that support thoughtful design.
4. Construction Preparation: Finalizing Plans and Permits
Before construction begins, the final remodeling plans are completed and permits are obtained if required. Materials are ordered in advance to help keep the construction timeline on schedule and avoid unnecessary delays.
5. Construction Begins: Bringing the Renovation to Life
With the planning complete, the project moves into the home construction and renovation phase. This stage may include demolition, structural work, installation of new materials, and finishing details. Throughout the remodeling process, communication remains a priority so homeowners always know the progress of their project. This project is currently in production, and we are in the process of getting ready for insulation and drywall!
6. Final Walkthrough: Ensuring Quality and Completion
Once construction is complete, we conduct a final walkthrough to review the finished renovation and ensure everything meets your expectations. This final step ensures every detail of your custom home renovation has been completed to the highest standard. Stay tuned for the completion of this project once construction is finished!
Bringing Your Vision to Life With a Trusted Remodeling Team
A home renovation is a significant investment, but with the right team and a clear design-build remodeling process, it can also be an exciting and rewarding experience. By guiding homeowners through every stage—from concept to completion—Blue Ribbon Residential Construction ensures each home remodeling project is smooth, transparent, and tailored to your needs. Below are renderings of the final designs:
Start Your Home Renovation With Blue Ribbon Residential Construction
At Blue Ribbon Residential Construction, we’re committed to making the remodeling process as seamless and stress-free as possible. From the initial consultation through final walkthrough, our team brings experience, communication, and craftsmanship to every project.
Whether you’re planning a kitchen remodel, bathroom renovation, home addition, or full home renovation, we’re here to guide you every step of the way.
Contact our team today to schedule your consultation and start planning your home renovation.
CATEGORIES
RECENT POSTS
































