Expanding Possibilities: A Thoughtful Addition to an Existing Home: Part 1 of 2
This blog is Part 1 of a two-part series. Part 2, which will showcase the construction phase and completed addition, will be published later in February.
Designing a Home That Grows With You
At Blue Ribbon Residential Construction, we believe a home should grow with the people who live in it. As families evolve and lifestyles change, the need for more comfort, privacy, and functionality becomes essential. That’s where a thoughtfully designed master suite addition can make all the difference.
Master suite additions are a key part of our home additions and whole-home renovation services, allowing homeowners to expand their living space while maintaining cohesion with the original home.
A Thoughtfully Planned Master Suite Addition
In this project, we had the opportunity to create a stunning master suite addition for an existing home, transforming it into a true personal retreat. From the initial design phase to the final details, our goal was to seamlessly integrate the new space with the original structure while elevating both the livability and value of the home. This addition was carefully planned to provide a peaceful, luxurious space that meets the homeowners’ needs today—and for years to come.
This type of long-term planning aligns with the approach we outline in our blog on design principles that create balance and harmony in remodeling projects.
What Was Included in This Master Suite Addition
- Master Bedroom
- Master Bathroom
- Organized Living Closet System
- Office
- Picture Frame Molding
- Window Nook
- Beadboard Detail
- Delta Plumbing Fixtures and Accessories
- Top Knobs Pulls and Knobs
- Byrd Tile
- Sherwin Williams Paint
- Ambient Lighting
- Ferguson Selections
- Kemper Cabinets
Many of these fixtures and finishes are also featured in other Blue Ribbon projects, including our posts on plumbing and electrical selections that support thoughtful design and fine details that make a big impact through hardware and finishes.
The Design Phase: Planning a Seamless Home Addition
Initial Consultation & Planning
After we presented a general cost range to these clients, we then visited the homeowner’s residence to analyze the existing conditions while consulting the homeowners wants and needs for the upcoming addition. Shown below are before photos of the project.
This early step is part of our home remodeling process, where on-site evaluation, budget alignment, and lifestyle considerations guide the design direction before plans are finalized.
Design Development
During this process, we are finalizing floor plans and selections for all structural modifications, finishes and fixtures. This phase often takes more than one round to refine, which is completely normal and expected for every project. After some revisions, these clients decided to go with Delta, Byrd Tile, and Top Knobs for some of their fixtures, which are some of our most reliable partnerships. Below are selection items and revisions we presented to the clients.
We explore how early fixture and finish decisions impact the final outcome in our blog on layered lighting strategies used in home remodels, which highlights the importance of coordinated selections during design.
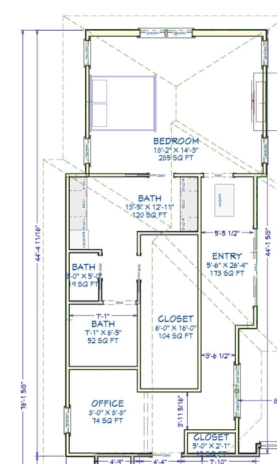
Construction Documentation & Visual Planning
After finalizing the floor plans and structural scope, we prepare a comprehensive construction document set that includes all required design details and construction notes. We also create renderings that allow clients to visualize their selections and design decisions coming to life before the construction phase begins. Shown below are a few sheets from the final planset and renderings of the spaces.
Detailed documentation and renderings are especially important in primary suite and home addition projects, helping the Blue Ribbon Construction team ensure accuracy, clarity, and alignment before construction begins.
What Comes Next
This concludes Part 1 of 2 in our Expanding Possibilities series. Part 2, coming later in February, will follow this project into the construction phase and highlight how this thoughtfully designed master suite addition comes to life on site.
CATEGORIES
RECENT POSTS















